Ikebukuro is a district known for its diversity with a high number of foreign residents. There are more than 200 hundred Chinese shops around turning Ikebukuro into a new Chinatown spot in Tokyo. Recently, even Chinese New Year events have already occurred in the last few years.
Despite that, the “actual migrant life” faces many strug- gles. According to Rhaman (2018), more than a dozen years after the wave of immigrants that occurred after World War II and in the 1990s, there are still many immigration problems in Japan, such as social dispar- ity and stratification. Many immigrants work and live in industries where labor shortages such as long-term care facilities are problematic, as migrants and plenty of these immigrants send funds to their families living in their own countries to support them. In addition, in many cases, students live in parallel to study Japanese, which is essential for working and living in Japan. Con- sequently, the financial, time, physical, and mental bur- dens are even higher.
Moreover, discrimination and social hindrance due to lack of understanding of the culture and religion of one’s own country can be mentioned. Many immi- grants in Japan belong to Islam, and this may not be accepted by the local people and might feel isolated. In addition, many foods and clothes are rooted in their
own culture, and these incomprehension and smok- ing habits can also be mentioned. There are many oth- er life cycle problems in living in Japan, and there are difficulties due to immigrants at various stages of life, such as childbirth, child-rearing, education costs, and nursing care for the elderly. Due to the various diffi- culties experienced by these immigrants, some feel alienated from living in Japan, and a symbiotic society with improved exclusivity in Japan cannot be realized.
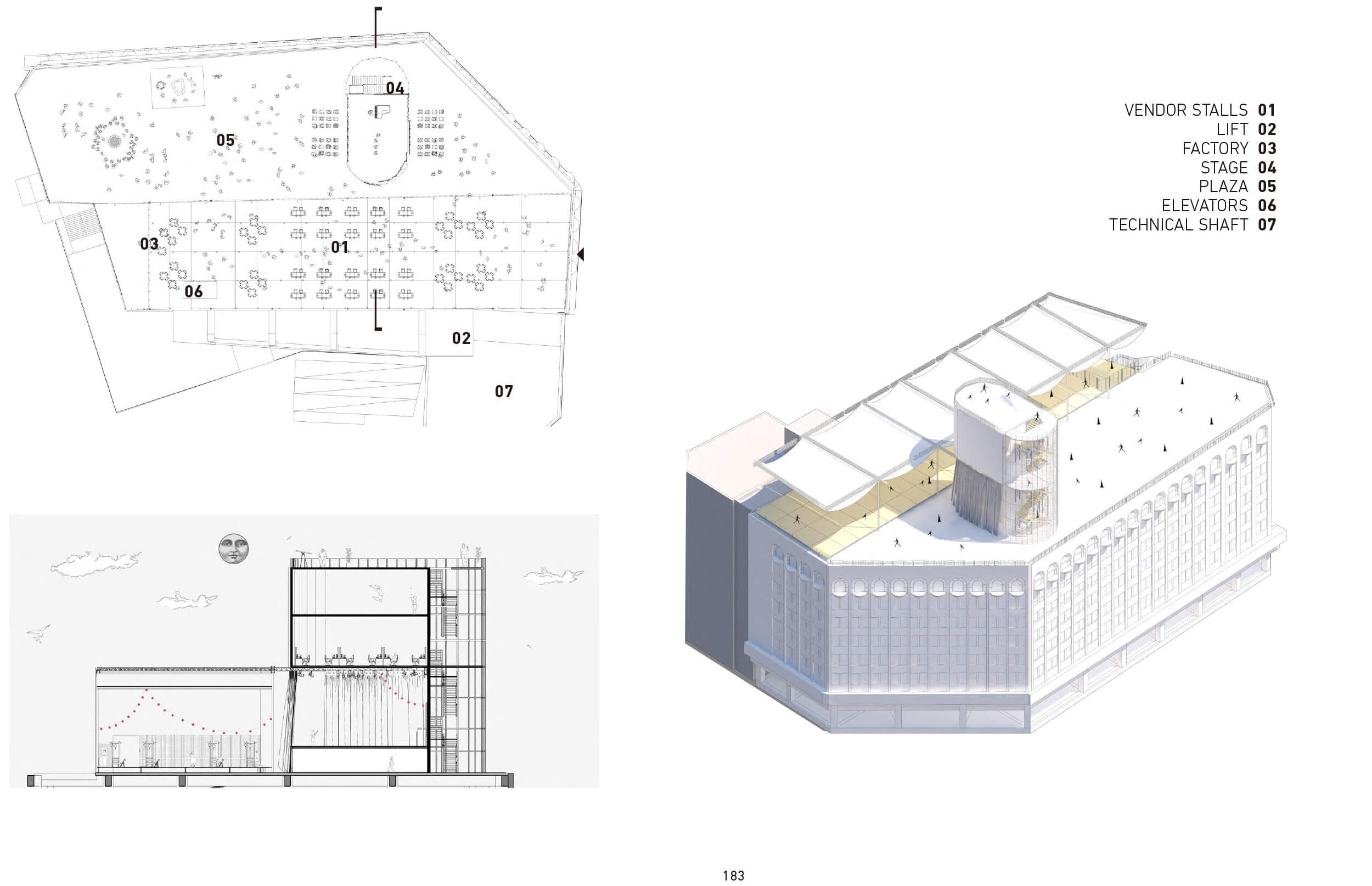
Observing the space formed by immigrants around Ikebukuro Station, we can see that there are mul- tiple areas where restaurants developed by immi- grants from China, South Korea, India, etc. are con- centrated and that many immigrants live in this area. A space that makes you feel strong is formed. On the other hand, there are few opportunities for Japanese people to interact equally as residents living in the same place, not as guests to those stores, as the mul- ticultural exchange festival is held only once a year.
Festivals are the act of shifting the world in which we live from everyday to extraordinary to another level. Russian philosopher Mikhail Bakhtin said that the fes- tival removes the class that socially divides human be- ings in daily life and creates a space where all the people who participate in the festival interact in a classless and equal relationship.
In Japan, immigrants are considered to be one of the classes divided in daily life by various scales such as rich and poor, occupation and homeless. The difference in values is so great that it is thought that this difference cannot be easily filled by just having a conversation in the same space. Given that there is a limit to the inter- action in daily life, providing a classless space that has transitioned from the daily life of festivals, as Bakhtin mentions, is a way immigrants to live in Japan.
Festivals might free from the constant feeling of alien- ation, and deepen awareness of living in the same land by increasing exchanges on an equal footing while having each culture in the place of Japanese and Ikebukuro. The festival calendar in the following pages was made based on a research of festivals held all over the world. Ten countries from Europe, North America, South America and Asia were picked considering the number of foreign residents who live by the region of Tokyo based on the chart bellow. The criteria for selection of festival was not limited by local religion and thought, but accord- ing to events in common all over the worlds, like the lu- nar calendar, solstice, equinox and seasons tradition.
PROBLEMS OF DOSTOEVSKY’S POETICS (1984) MICHAIL BAKHTIN
Immigrants living in Japan have experienced many problems like economic aspects and communications. They feel alienated in life because of the many difficul- ties. If this goes on, a symbiotic society that improves exclusivity can’t be achieved. Mikhail Bakhtin said in the book “Problems of Dostoevsky’s Poetics” that Fes- tival can remove the social class that divides people in daily life. After that, a unique space that all the partic- ipants interact with non-class was formed. Providing this space can decolonize the alienation of immigrants and help to make a symbiotic society.






